美和ロック,MIWA SL77引戸錠 [MIWA-SL77]
販売価格: 2,420円(税別)
(税込: 2,662円)
オプションにより価格が変わる場合もあります。
商品詳細
美和ロック,MIWA SL77引戸錠
オプションにより価格が変わる場合もあります。
オプション選択タイプにより納期がかかる場合がございます。お急ぎのお客様は前もって納期のご確認を願いいたします。

写真はU9SL77-1型になります。
バリエーションでご選択いただける事項
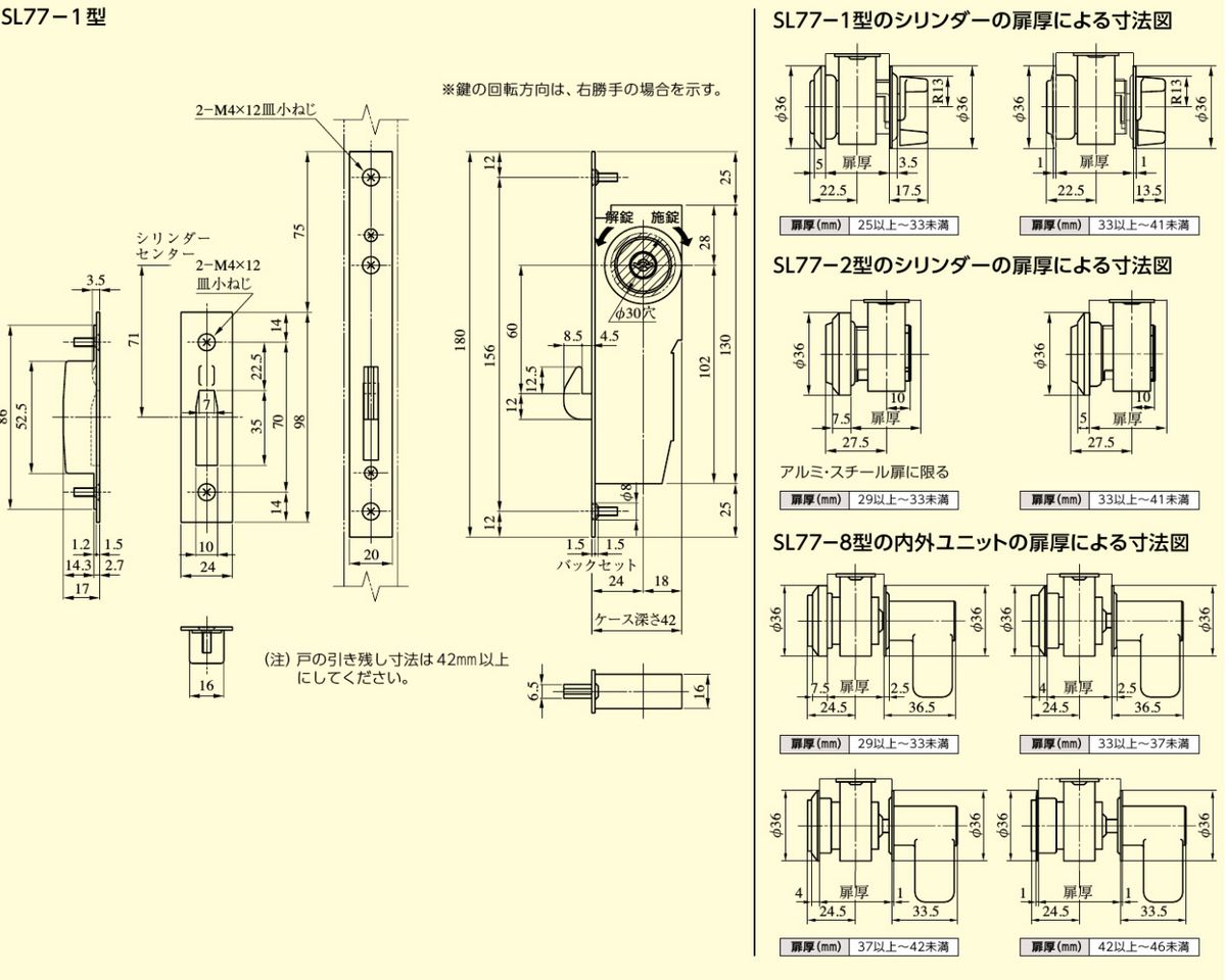
・型式は1型,2型,3型,8型からご選択いただけます。(型式により対応戸厚が異なります。)
バリエーションでご選択いただけない事項
・色はアルミシルバーになります。
・本商品はU9シリンダーのみ装着可能です。PRシリンダー,LBシリンダーは装着できませんのでご注意ください。
・キーは3本セットとなります。追加キーをお求めの場合は別途お問い合わせください。
・受けは平受け掘り込みストライクが付属されます。外観図でご確認下さい。
・ルーター加工用フロント・ストライク付 SL77D-1をご希望のお客様は別途お問い合わせ下さい。
・U9シリンダー詳細概要


商品の機能については下記の表をご確認下さい。

仕様(拡大版)

商品の仕様については下記の表をご確認ください。


