鍵交換はDIYがお得です。鍵の卸売りセンターなら1個から卸売り販売 DIYの鍵交換と防犯対策を応援しております。
オプションにより価格が変わる場合があります。
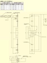
実物と写真は色合いが若干異なる場合があります。ご了承ください。
タイプにより納期がかかる場合があります。お急ぎのお客様、期日指定のあるお客様は前もって納期のご確認をお願い致します。

バリエーションで扉厚をご選択ください。
バリエーションで扉の開きを片開き、両開きの2種類からご選択ください。


タイプをバリエーションでASE、AST、ASRの3種類からご選択ください。各タイプの詳細は下のタイプ説明でご確認ください。
(タイプ説明)
・美和ロック電気ストライク(電気錠) AST 通電時解錠型 用途 マンション共有玄関、ビル通用口
通電している間は解錠し、扉を開けられる状態になり、通電が切れると自動的に施錠復帰します。
枠に取付け自動施錠タイプの錠前(AD、HK、LALシリーズ)と組み合わせて使用します。
通電中は電気ストライクが解錠し錠が施錠状態であっても扉を開ける事ができます。(側圧15kg以下でご使用ください)
非通電時に扉を閉めると自動施錠します。
電気ストライクの施解錠及び扉に開閉の状態を電気的に確認できます。(無電圧接点出力)
扉と枠のチリ寸法は6mm以内としてください。
・美和ロック電気ストライク(電気錠) ASR 通電時施錠型 用途 非常口
通電が切れている間は解錠し、扉を開けられる状態になり、通電すると施錠状態になります。
枠に取付け自動施錠タイプの錠前(AD、HK、LALシリーズ)と組み合わせて使用します。
通電が切れている間は電気ストライクが解錠し、錠が施錠状態であっても扉を開ける事が出来ます。(側圧10kg以下でご使用ください。)
通電時に扉を閉めると自動施錠します。
電気ストライクの施解錠及び扉に開閉の状態を電気的に確認できます。(無電圧接点出力)
停電時は解錠します。
扉と枠のチリ寸法は6mm以内としてください。
・美和ロック電気ストライク(電気錠) ASE 瞬時通電解錠型 用途 非常口
非常口用電気ストライク(瞬時通電解錠型):通電により解錠し、扉を何度でも開けられる状態になります。
枠に取付け自動施錠タイプの錠前(AD、HKシリーズ)と組み合わせて使用します。
瞬時通電により電気ストライクが解錠し、錠が施錠状態であっても扉を開ける事が出来ます。
側圧25kg以下でご使用ください。
1度解錠するとフロントの丸穴を細長い棒等で押して、施錠復帰を行うまで解錠状態のままです。
電気ストライク施解錠および扉の開閉の状態を電気的に確認できます。(無電圧接点出力)
停電時は停電前の状態のままです。
納期がかかる場合があります。
お急ぎのお客様、期日指定のあるお客様は前もって納期のご確認をお願い致します。
扉と枠のチリ寸法は6mm以内としてください。
